
Nhà Phố 3 Tầng – Chị Huyền – Hưng Yên
Thông số
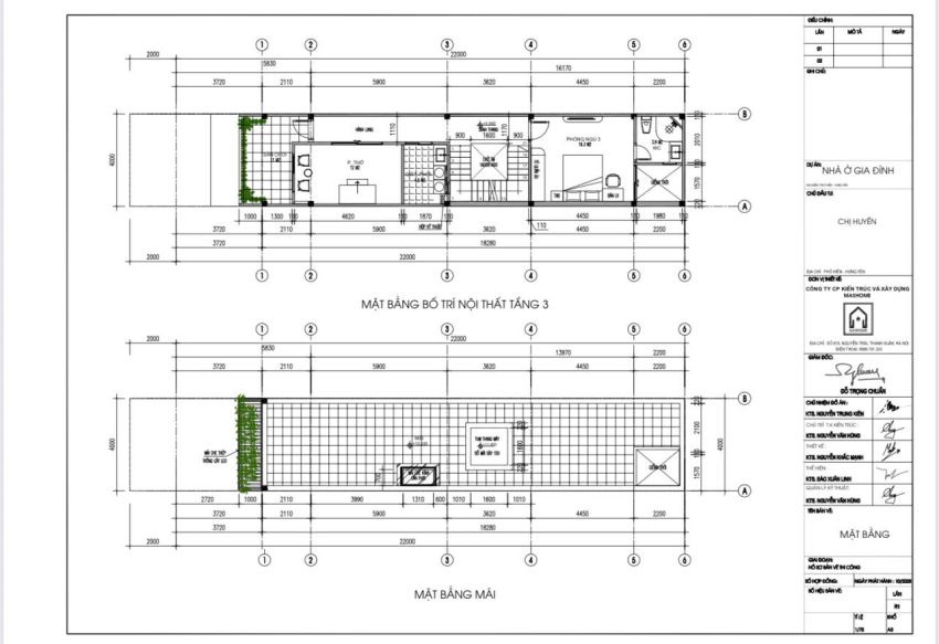
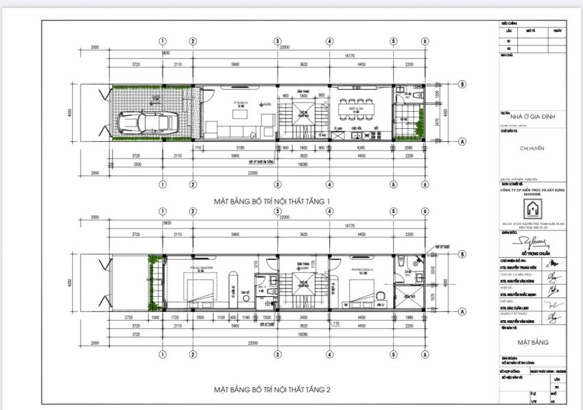
Công trình
Nhà phố 3 tầng
Chủ đầu tư:
Chị Huyền
Địa chỉ:
Hưng Yên
Số tầng:
3 tầng
Phong cách
Hiện đại
Diện tích
4m x 19,3m
Loại hình
Nhà phố
Năm thi công
2025
Sản phẩm tương tự
Tin tức
Nhà mái nhật 2 tầng 3 phòng ngủ – Phù hợp với gia đình 2 thế hệ
Nhà mái nhật 2 tầng 3 phòng ngủ là mẫu nhà phù hợp với Gia...
18
Th9
Th9
Nhà mái nhật 2 tầng 4 phòng ngủ – Lựa chọn hoàn hảo cho gia đình Việt
Nhà mái nhật 2 tầng 4 phòng ngủ đang là mẫu nhà được tìm kiếm...
16
Th9
Th9
NHÀ MÁI NHẬT 2 TẦNG NÊN LÀM MÓNG GÌ ĐỂ KHÔNG LO LÚN NỨT
Nhà mái nhật 2 tầng thường có diện tích xây dựng lớn từ 100m2 cho...
10
Th9
Th9
Phương án thi công mái ngói cho nhà mái nhật, mái thái
MỤC LỤCMái lợp ngói cho nhà mái nhật, mái thái1. Đổ sàn phẳng bê tông...
28
Th8
Th8
99+ Mẫu nhà mái nhật đẹp dẫn đầu xu hướng
MỤC LỤC1. Nguồn gốc của nhà mái Nhật2. Tại sao nhà mái nhật đang dẫn...
27
Th8
Th8
Diện tích phòng bếp bao nhiêu m2 là hợp lý
Phòng bếp không chỉ là nơi nấu nướng mà còn là không gian sum họp,...
18
Th3
Th3
Thi công nội thất gỗ tự nhiên và những điều cần biết
Thi công nội thất gỗ tự nhiên đang trở thành xu hướng và được nhiều...
17
Th3
Th3
Ý tưởng thiết kế phòng ngủ 16m2 đẹp
Thiết kế phòng ngủ 16m2 thường phù hợp cho một người hoặc các cặp vợ...
14
Th3
Th3
Thông số
Công trình
Nhà phố 3 tầng
Chủ đầu tư:
Chị Huyền
Địa chỉ:
Hưng Yên
Số tầng:
3 tầng
Phong cách
Hiện đại
Diện tích
4m x 19,3m
Loại hình
Nhà phố
Năm thi công
2025










